No.
17
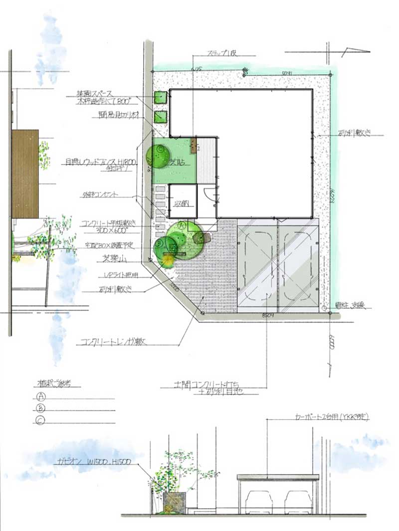
素材の質感が奏でる上質な門まわり
このお庭が素敵だと思われましたら、
ぜひ投票よろしくお願いします!
Comment
外構の顔となる門柱には重厚感のあるガビオンを採用し、素材そのものの存在感が空間に力強いアクセントを加えます。 階段前には大判の鉄平石を据え、自然石の質感がもたらす重厚で味わい深い佇まいに。 アプローチには温かみのあるコンクリートレンガを採用。 異なる素材をバランスよく組み合わせることで、無骨さと上質さが心地よく共存するエントランス空間をつくり出しています。



