No.
05
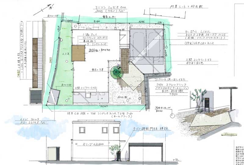
グラベルがファサードを彩るエクステリアデザイン
このお庭が素敵だと思われましたら、
ぜひ投票よろしくお願いします!
Comment
サブ駐車場を計画すると、費用を抑えるために砂利を敷いただけの外構プランになりがちですが、 このお家ではその部分にアクセントを加え、敷地形状を活かしたデザインに仕上げました。 突き当りのL字型敷地はお家を正面ではなく道路から斜めに見るため、その構図を一番素敵に見せることを意識しています。 カーポートはお家の外観に合わせてブラックポリカーボネートの屋根材を採用。メイン駐車スペースはシンプルに土間コンクリートで仕上げています。 中央には洗い出しコンクリートをひし形に配置し、砂利敷き部分にボーダーのアクセントをあしらうことでオリジナリティあふれるデザインに。 門柱の向きや植栽スペースは窓との位置関係や動線を考慮した配置にしています。 ベージュやブラウンの色味を入れ、軽やかさを感じさせるファサードになりました。



