No.
51
直線と曲線が調和する、心地よく暮らすお庭
このお庭が素敵だと思われましたら、
ぜひ投票よろしくお願いします!
Comment
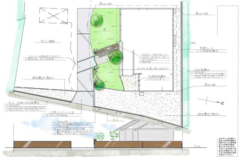
今回の外構計画では、ご主人様のお好きな“すっきりとした直線”と、奥様のご希望である“柔らかな曲線”をバランスよく取り入れ、ご家族それぞれの思いが自然に溶け合うデザインに仕上げました。モダンさとあたたかさが共存する、心地よい印象のリガーデンです。 お庭まわりは、既存の植栽を大切に残しながらも、お手入れしやすいように全体をすっきりと整理。自然の緑がほどよく馴染み、暮らしの中にやさしい彩りを添えています。 お庭には、天然芝のやわらかな感触が心地よく広がるスペースを確保。季節の移ろいを感じながら、のびのびと過ごせる憩いの場所となっています。 また敷地内には、お車がスムーズに通れる動線を確保し、日々の暮らしやすさにも配慮。家族みんなが安心して使える、機能性の高い外構となりました。 ご夫婦それぞれの“好き”や“心地よさ”を大切にしながら、暮らしに寄り添う空間を形にした施工事例です。



